Alaabta
Beddelka Voltage Electromagnetic ee Saliida Immersed
  • Beddelka Voltage Electromagnetic ee Saliida ImmersedBeddelka Voltage Electromagnetic ee Saliida Immersed
  • Beddelka Voltage Electromagnetic ee Saliida ImmersedBeddelka Voltage Electromagnetic ee Saliida Immersed

Beddelka Voltage Electromagnetic ee Saliida Immersed

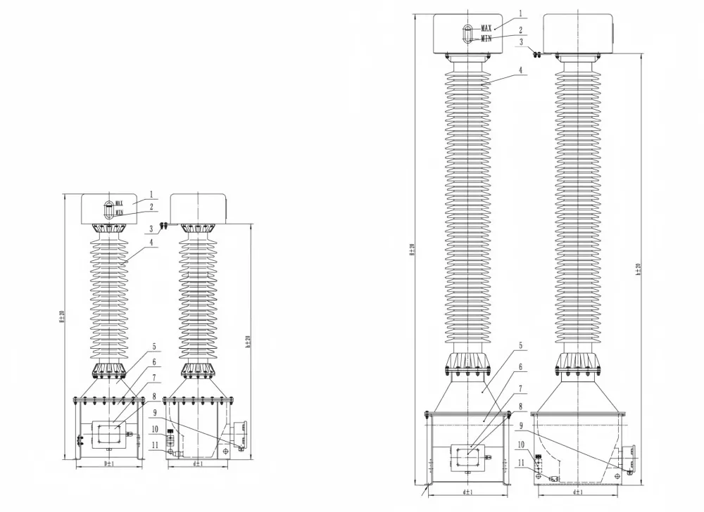
Model:JDX-110、220
Anqiang Power waa iibiye Shiinees ah oo soo saara saliidda la geliyo koronto-mareennada korantada. Transformer Tani waa dibadda, hal-waji ah, nooca hal-marxalad, ku haboon nidaamyada koronto ee soo noqnoqda la qiimeeyay ee 50Hz ama 60Hz iyo danab lagu qiimeeyay 66KV-220KV, loogu talagalay isticmaalka danab iyo cabbir tamarta iyo ilaalinta gudbinta.

Anqiang's si madaxbanaan u horumariyay Oil Immersed Electromagnetic Voltage Transformer, model JDX, wuxuu ku habboon yahay heerarka korantada ee 66KV, 110KV, iyo 220KV.  Transformer-ku waxa uu leeyahay saddex dabaylo sare oo sare, oo leh dabaylo cabbir iyo ilaalin gaar ah.  Waxa lagu qalabeeyay taangiga balaadhinta birta aan birta lahayn ee sare, taas oo ay ku jirto muraayad aragga heerka saliidda si fudud loogu kormeero isbeddelada heerka saliidda. Qeybta hoose ee Transformer-ka korontada ku shaqeysa ee Oil Immersed Electromagnetic Voltage waxaa lagu rakibay waalka dheecaanka saliida ee shaqeeya oo badan, samaynta muunada saliida, daadinta, iyo buuxinta mid ku haboon. Saldhigga iyo qaybaha kale ee birta ee alaabtu waxay isticmaalaan daahan budada ah iyo kuwa kulul ee galvanizing hababka ka-hortagga daxalka, hubinta labadaba bilicda iyo iska caabbinta daxalka. Transformer-kani waxa uu leeyahay qaab-dhismeed dahaadhid hal-marxalad ah, iyo horseedayaashu waxa ay ka kooban yihiin shaashado awood badan si loo hubiyo goob koronto oo isku mid ah.

Sawirada alaabta dhabta ah

Oil Immersed Electromagnetic Voltage Transformer

Qiyaasaha Farsamada

Korontada aasaasiga ah ee la qiimeeyay (kV)

66/69

110/115

132/138

150

220/230

Danabka ugu badan ee qalabka (kV)

72.5

123/126

145

325

460

Inta jeer ee la qiimeeyay (Hz)

50/60

Korontada la qiimeeyay ee u adkeysaneysa danab (kV)

140/160

230

275

750

1050

Heerarka hillaaca u adkaysta (kV)

325/350

550

650

1500

2100

Fogaanta toosan ee Arc

780

1050

1300

 

 

Culeyska makaanikada (N)

1250

1250

1250

1250

1250

Calaamadaynta terminaalka sare

1a-1n

2a-2n

da-dn

Heerka saxda ah

0.2

0.5

3P

Wax soo saarka la qiimeeyay (VA)

100

250

300

150

150

300

150

300

Soosaarka xadka kulaylka (VA)

2000

factor danab lagu qiimeeyay

1.2/Soo socota;1.9/8h(66KV)
1.2/Soo socota;1.5/30s(110-230KV)

jaantuska muuqaalka alaabta

Oil Immersed Electromagnetic Voltage Transformer

Tirada

Magaca

1

Balaadhin

2

Daaqadda kormeerka heerka saliidda

3

Terminal kali ah

4

Shaadhka boorsada

5

Kursiga kor loo qaaday

6

Taangiga

7

sanduuqa isgoyska sare

8

Saxeexa magaca

9

Daloolka ka baxa dugsiga sare

10

saxan dhulka la dhigo

11

Saliida daloolka

Hot Tags: Beddelka Voltage ee Saliida Immersed
Soo dir weydiin
Macluumaadka Xiriirka
  • Cinwaanka

    Aagga Warshadaha ee Jinlu, Magaalada Beibaixiang, Magaalada Yueqing, Magaalada Wenzhou, Gobolka Zhejiang, Shiinaha

  • Tel

  • E-mailka

    john@chaqele.com

Wixii su'aalo ah oo ku saabsan Wareegtada Wareegga, Bedelka Load-ka, Isku-xidhka Bedelka ama liiska qiimaha, fadlan iimaylkaaga noogu dhaaf waxaanu kula xidhiidhi doonaa 24 saacadood gudahood.
X
Waxaan isticmaalnaa cookies si aan kuu siino khibrad wax barasho oo wanaagsan, u falanqeyso taraafikada goobta iyo shaqsiyeynta macluumaadka. Isticmaalka boggan, waxaad ogolaatay isticmaalkayada cookies-ka. Siyaasadda Qarsoonnimada
Diid Aqbal